Carigiet Cowen Logo
Book a viewing

By contacting us via email, phone or the form above you will be sending us your Personal Data. To read how we handle your data please follow this link to read our Privacy Statement and Policy: Privacy Statement and Policy

Make an enquiry

By contacting us via email, phone or the form above you will be sending us your Personal Data. To read how we handle your data please follow this link to read our Privacy Statement and Policy: Privacy Statement and Policy

Investment - Pizza Express

21 Lowther Street, CARLISLE, Cumbria CA3 8ES

For Sale 4,781 Sq Ft Sale: Offers in the region of £525,000

  • ATTRACTIVE RESTAURANT PREMISES
  • A NEW 10 YEAR LEASE FROM MARCH 2025
  • RESIDENTIAL REDEVELOPMENT OPPORTUNITY FOR UPPER FLOORS
  • NO VAT PAYABLE

Agent for this property:

Ben Blain

Photo 1
Photo 2
Photo 3
Photo 4

Sold Subject to Contract

Photo 1
Photo 2
Photo 3
Photo 4

PIZZA EXPRESS FREEHOLD INVESTMENT

21 Lowther Street is a Grade II Listed building, comprising a three-storey corner building of limestone construction, under a flat roof. The property benefits from occupancy by national tenant, Pizza Express, on the ground floor and basement. The first and second floor has self-contained access to the vacant office accommodation, with the potential for these areas to be converted to residential use.

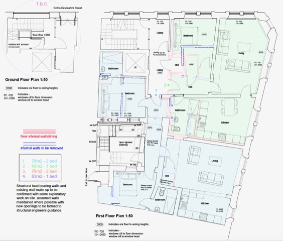
Indicative plans are attached, and the planning reference number is 22/0609, and expires 3 August 2025. This is to create 4 no. apartments/flats, which were granted in August 2022.

Carlisle is the chief administrative and commercial centre of Cumbria with a resident population of circa 90,000 and a much wider catchment in excess of 150,000. The city is the principal retail centre for the area, with Newcastle 60 miles east, Glasgow 90 miles north, and Preston 80 miles south. The city benefits from good transport links by way of Carlisle railway station, positioned only 150 metres away.

The new University of Cumbria campus and Borderlands redevelopment of the Citadel Buildings are in the pipeline, and the proposed plans have been accepted. Additionally, improvement of pavement work has recently concluded on Devonshire Street, and this building lies within this development.

Positioned on the corner of Lowther Street and Devonshire Street, in a popular daytime and evening area that provides a variety of local bar and restaurant operators, The Last Zebra, Thin White Duke, Le Gall and This Time Bar, as well as national occupiers Nando's, Nationwide Building Society and Lloyds Bank.

Description Sq Ft Sq M
Ground Floor Restaurant 1,803 167.50
Basement 866 80.45
First Floor 998 92.71
Second Floor 1,114 103.49

We understand mains gas, water, electricity and drainage are connected. The upper floors are on separate electricity supplies and meters from the ground floor demise.

Offers in the region of £525,000 are invited for the freehold investment.

Pizza Express (Restaurants) Limited is the tenant of the ground floor and basement. The lease began in January 2000 for a term of 25 years and has just been renewed from March 2025 until 2035 at a rent of £35,000 per annum exclusive.

The tenant has a break in 2031. The rent is subject to a fifth year upward-only rent review, and the lease is drafted on internal repairing and insuring terms by way of service charge. Further information, including obtaining a copy of the lease, is available by contacting the agent directly.

The first and second floors are currently vacant and benefit from their own dedicated access from Devonshire Street.