Carigiet Cowen Logo
Book a viewing

By contacting us via email, phone or the form above you will be sending us your Personal Data. To read how we handle your data please follow this link to read our Privacy Statement and Policy: Privacy Statement and Policy

Make an enquiry

By contacting us via email, phone or the form above you will be sending us your Personal Data. To read how we handle your data please follow this link to read our Privacy Statement and Policy: Privacy Statement and Policy

The Annex - Old Croft

Well Lane, CARLISLE, Cumbria CA3 9BA

To Let 1,234 Sq Ft Rent: £25,000 Per Annum

  • EXCEPTIONAL REFURBISHED ACCOMMODATION
  • SELF CONTAINED OVER GROUND & FIRST FLOORS
  • EXTENSIVE DEDICATED SURFACED PARKING
  • CONVENIENT LOCATION CLOSE TO CITY CENTRE

Agent for this property:

Ben Blain

Photo 6
Photo 7
Photo 2
Photo 1
Photo 5
Photo 6
Photo 7
Photo 2
Photo 1
Photo 5

HIGH QUALITY OFFICE SPACE IN ATTRACTIVE BUILDING

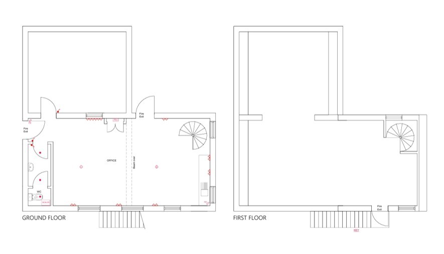
The Annex is a recently refurbished end of terrace two storey brick built property under a pitched slate roof. The ground floor comprises self contained ramped DDA access, open plan office spaces, a private office, two WCs including one disabled WC and staff kitchen with hot water Quooker tap. The configuration is a L shape.

An attractive timber spiral staircase provides access to the first floor. This area provides open plan accommodation with high levels of natural light by way of various roof lanterns and velux windows.

Dedicated car parking is provided immediately outside the building.

Carlisle is the predominant population and commercial centre for Cumbria. The city is the principle administrative and retail centre for the area.

The M6 motorway runs to the east of the City and is the principal route North and South. The A69 provides the main East/West arterial route linking Carlisle to Newcastle Upon Tyne. Carlisle also benefits from a West coast mainline rail service to London Euston whilst to the north Edinburgh ad Glasgow city centres can be reached in less than 1.5 hours via train.


Old Croft is located within the primarily residential suburb of Stanwix immediately to the North of Carlisle city centre, as shown on the adjacent location plan. The property is well placed to access the local services available in the immediate vicinity and across the city as a whole.

The office buildings sits close to the Stanwix infant and primary schools, as well as the Brampton Road University of Cumbria campus. Nearby amenities include; a Sainsburys local, vets 4 pets, the Stanwix Tandoori, The Crown Pub and a long established newsagents. Other operators within Old Croft include Meldrum Electrical, RTE, Ashwood Design Architects and AI Daines.

Description Sq Ft Sq M
Ground Floor 679 63.08
First Floor 555 51.56

The property is connected to mains water, drainage and electricity. The building has its own electricity meter. Heating is provided throughout by way of brand new heating and cooling climate control cassettes.

The property is available TO LET on a new lease for a term to be agreed at a rent in the region of £25,000 per annum exclusive.